Search

Leave a Message

Thank you for your message. I will be in touch with you shortly.

Explore Our Properties

Property Description

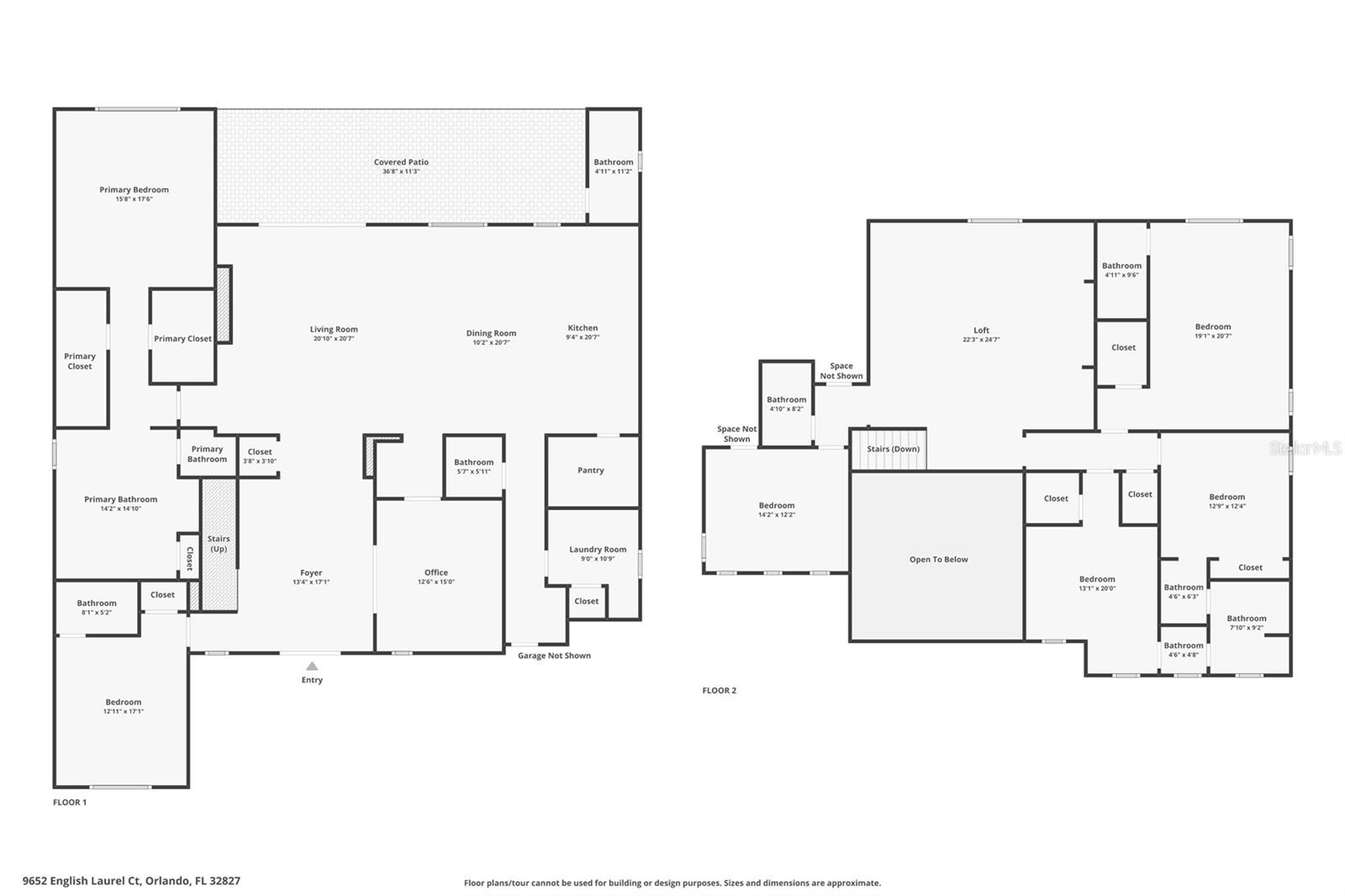
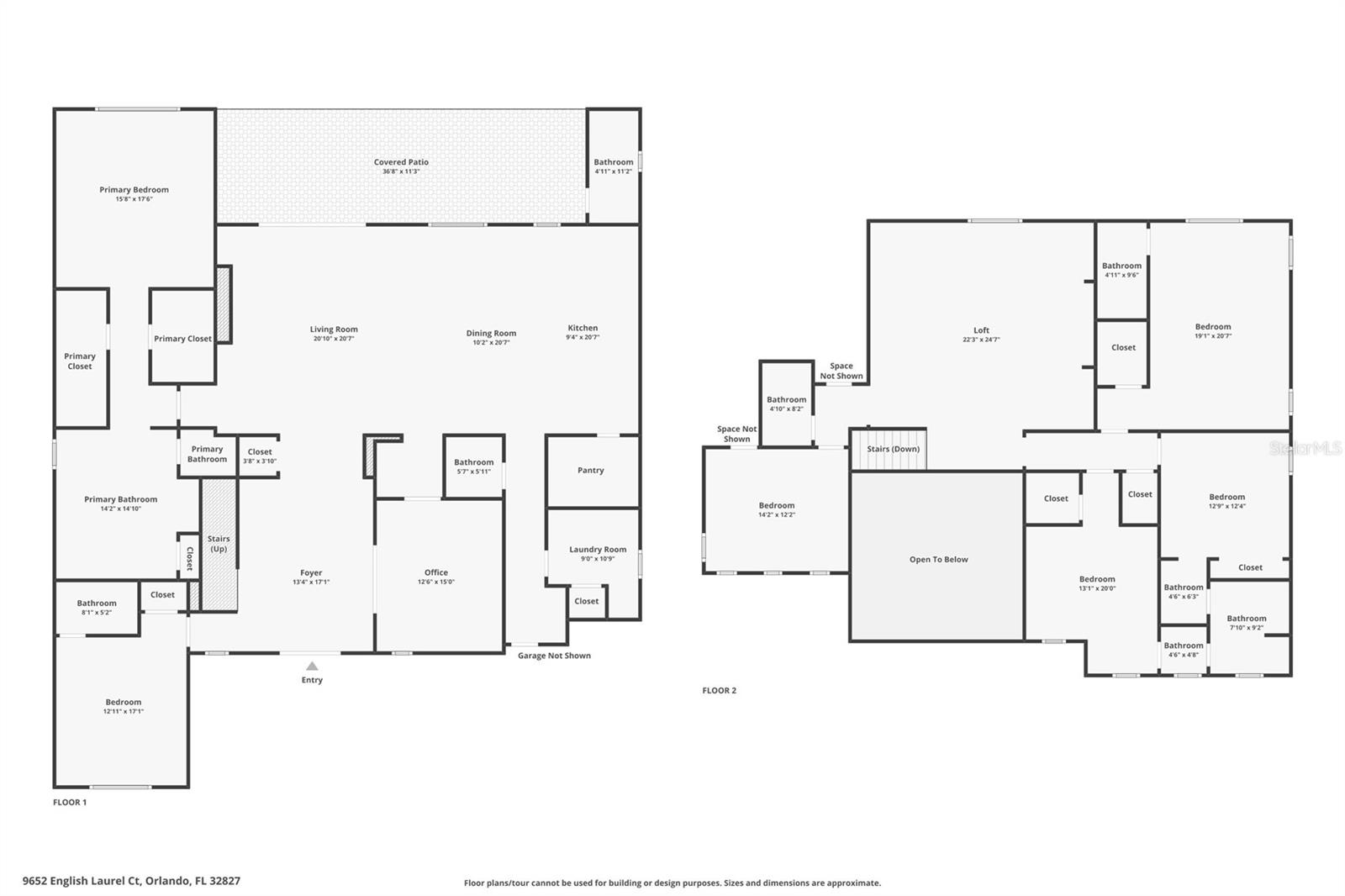
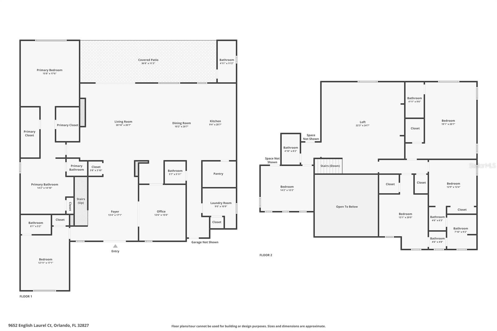
Experience luxury living in the heart of Lake Nona with this designer-enhanced Toll Brothers Corbeil Farmhouse, a meticulously upgraded estate located in the prestigious gated community of Laurel Pointe at Lake Nona. Blending refined elegance with everyday comfort, this exceptional residence welcomes you with timeless curb appeal, a charming covered front porch, and an impressive double-door entry that opens into a dramatic two-story foyer with soaring 25-foot ceilings accented by a board and batten accent wall. The spacious great room showcases a coffered ceiling, custom wood beams, a soothing fireplace, and a built-in entertainment center with custom floating wood shelves, creating a stunning focal point for both gatherings and quiet evenings with family. At the heart of the home, the chef's kitchen features an oversized quartz island, natural hand-cut stone backsplash in a double herringbone pattern, premium KitchenAid luxury appliances package, gas range,solid wood cabinetry with dovetail drawers and soft-close hardware, and both a walk-in pantry and a butler's pantry for exceptional function and storage, while the bright casual dining area offers serene views of the private outdoor retreat. The first floor primary suite serves as a tranquil haven with custom wood beams, shiplap accent wall, dual walk-in closets, and a spa-inspired bath complete with a soaking tub, expansive luxe shower, dual vanities, and a private water closet. A convenient downstairs guest suite provides comfort and privacy for visitors. Glass barn doors lead to the Flex Room / Office. Upstairs, a generous Bonus Room with built-in entertainment center with floating shelves anchors the upper level, surrounded by spacious secondary bedrooms including two with a shared bath and separate vanities, one with a dedicated hall bath, and another second primary suite featuring a charming barn door and window bench, along with a second primary suite offering a cedar-accented herringbone natural stone wall and private bath making it ideal for multi-generational living or luxurious guest accommodations. Step outdoors into a resort quality sanctuary where a private saltwater PebbleTec pool, elegant white quartz cut-stone decking, sun shelf with in-pool loungers, sparkling charcoal mosaic tile spa, full cabana bath, and covered lanai with cedar barnboard plank ceiling and accents provide endless opportunities for relaxation and entertaining guests. Other interior upgrades include a custom drop zone in the mud room, plantation shutters, built in surround sound system, and Guardian garage flooring. The jaw-dropping exterior is perfected by a resort-inspired pergola, an impressive outdoor kitchen with a high-end stainless steel Paradise Grill and oversized range hood, and retractable electric screens and sunshades that blur the line between indoor and outdoor living.Perfectly situated in the heart of Lake Nona, this residence offers unparalleled convenience--just moments from Medical City, the VA Hospital, Nemours, dining, upscale shopping, and the dynamic Lake Nona Town Center. Quick access to major highways, Orlando International Airport, the USTA National Campus, and world-famous theme parks and beaches ensures effortless connectivity to everything Central Florida has to offer. With every detail thoughtfully curated, this exceptional residence is ready for the most discerning buyer to call it home.

Overview

Property Status
For Sale
Lot Size
9,815 Sq.Ft.
MLS ID
O6362345
Property Type
Residential
Year Built
2023

Features & Amenities

Total Area
6,593 Sq.Ft.
Architecture Styles
Traditional
Water Frontage
Pond
View Description
Water
Stories
2
Garage Spaces
3.0
Water Source
Public
Utilites
BB/HS Internet Available, Electricity Connected, Fiber Optics, Sewer Connected, Sprinkler Meter, Underground Utilities, Water Connected
Pool
Auto Cleaner, Chlorine Free, Fiber Optic Lighting, Gunite, Heated, In Ground, Lighting, Outside Bath Access, Salt Water, Tile
Roof
Shingle
Lot Features
Cul-De-Sac, Landscaped, Sidewalk, Paved, Private
Heat Type
Heat Pump
Air Conditioning
Central Air, Attic Fan
Laundry Room
Inside, Laundry Room
Fireplace
Electric
Appliances
Bar Fridge, Convection Oven, Cooktop, Dishwasher, Disposal, Gas Water Heater, Microwave, Range Hood, Refrigerator, Tankless Water Heater, Water Softener
Other Interior Features
Ceiling Fans(s), Eat-in Kitchen, High Ceilings, Kitchen/Family Room Combo, Living Room/Dining Room Combo, Open Floorplan, Primary Bedroom Main Floor, Solid Surface Counters, Solid Wood Cabinets, Split Bedroom, Stone Counters, Thermostat, Tray Ceiling(s), Walk-In Closet(s), Wet Bar, Window Treatments
Sewer
Public Sewer
Substructure
Slab
Other Exterior Features
Lighting, Outdoor Grill, Shade Shutter(s), Sidewalk, Sliding Doors, Sprinkler Metered
Elementary School
Laureate Park Elementary
Middle School
Lake Nona Middle School
High School
Lake Nona High
Sales Price
$2,024,900
Real Estate Tax
$32,176/yr
HOA
$248/mo
Zoning
PD/AN

Downloads

9652 ENGLISH LAUREL CT

Schedule a Tour

I’d love to help you see this beautiful home! As part of a full-service brokerage, I can assist you with scheduling a tour, submitting an offer, and answering any questions you have about the buying process.

Thank you

for your interest in 9652 ENGLISH LAUREL CT, ORLANDO, FL 32827

9652 ENGLISH LAUREL CT
Navigate
9652 ENGLISH LAUREL CT
explore in 3d

Mortgage Calculator

Estimate your monthly mortgage payment, including the principal and interest, property taxes, and HOA. Adjust the values to generate a more accurate rate.
$0,000 Your Payment 20 15 65
$0,000 Your Payment

Browse My

Portfolio

  • 9714 VISTA FALLS DR Sold

    $7,985,000

    9714 VISTA FALLS DR, GOLDEN OAK, FL 32836

    • 6 Beds
    • 10 Baths
    • 6,793 Sq.Ft.
  • 8990 DARLENE DR Sold

    $7,400,000

    8990 DARLENE DR, ORLANDO, FL 32836

    • 6 Beds
    • 8 Baths
    • 7,776 Sq.Ft.
  • 4647 VAN KLEECK DR Sold

    $7,290,000

    4647 VAN KLEECK DR, NEW SMYRNA BEACH, FL 32169

    • 4 Beds
    • 5 Baths
    • 5,700 Sq.Ft.
  • 1003 DOWN RESERVE CT Pending

    $4,999,999

    1003 DOWN RESERVE CT, WINDERMERE, FL 34786

    • 6 Beds
    • 8 Baths
    • 6,816 Sq.Ft.
  • 11618 VINCI DR For Sale

    $4,950,000

    11618 VINCI DR, WINDERMERE, FL 34786

    • 5 Beds
    • 7 Baths
    • 6,188 Sq.Ft.
  • 9205 TIBET POINTE CIR Sold

    $4,900,000

    9205 TIBET POINTE CIR, WINDERMERE, FL 34786

    • 5 Beds
    • 10 Baths
    • 8,259 Sq.Ft.
  • 8968 BAY COVE CT For Sale

    $4,499,990

    8968 BAY COVE CT, ORLANDO, FL 32819

    • 6 Beds
    • 7 Baths
    • 5,428 Sq.Ft.
  • 489 OCEAN SHORE BLVD Sold

    $4,330,000

    489 OCEAN SHORE BLVD, ORMOND BEACH, FL 32176

    • 5 Beds
    • 9 Baths
    • 7,483 Sq.Ft.
  • 9720 LAUREL BERRY DR For Sale

    $3,700,000

    9720 LAUREL BERRY DR, ORLANDO, FL 32827

    • 5 Beds
    • 6 Baths
    • 6,632 Sq.Ft.
  • 13305 BELLARIA CIR For Sale

    $3,350,000

    13305 BELLARIA CIR, WINDERMERE, FL 34786

    • 6 Beds
    • 8 Baths
    • 6,930 Sq.Ft.
  • 15417 PENDIO DR Sold

    $3,300,000

    15417 PENDIO DR, MONTVERDE, FL 34756

    • 5 Beds
    • 7 Baths
    • 6,632 Sq.Ft.
  • 4261 ISABELLA CIR Sold

    $3,250,000

    4261 ISABELLA CIR, WINDERMERE, FL 34786

    • 6 Beds
    • 9 Baths
    • 7,129 Sq.Ft.
  • 9101 KILGORE RD Sold

    $3,100,000

    9101 KILGORE RD, ORLANDO, FL 32836

    • 5 Beds
    • 6 Baths
    • 7,513 Sq.Ft.
  • 4162 GRANDE BRICK LOOP #27 Sold

    $3,000,000

    4162 GRANDE BRICK LOOP #27, ORLANDO, FL 32837

    • 3 Beds
    • 4 Baths
    • 2,799 Sq.Ft.
  • 4635 VAN KLEECK DR Sold

    $2,750,000

    4635 VAN KLEECK DR, NEW SMYRNA BEACH, FL 32169

    • 4 Beds
    • 4 Baths
    • 3,110 Sq.Ft.
  • 1526 BLUEWATER RUN Sold

    $2,735,000

    1526 BLUEWATER RUN, CHULUOTA, FL 32766

    • 5 Beds
    • 7 Baths
    • 6,195 Sq.Ft.
  • 9718 KILGORE RD Sold

    $2,600,000

    9718 KILGORE RD, ORLANDO, FL 32836

    • 5 Beds
    • 4 Baths
    • 4,321 Sq.Ft.
  • 16110 PENDIO DR Pending

    $2,350,000

    16110 PENDIO DR, BELLA COLLINA, FL 34756

    • 5 Beds
    • 6 Baths
    • 3,924 Sq.Ft.
  • 530 LARGOVISTA DR Sold

    $2,275,000

    530 LARGOVISTA DR, OAKLAND, FL 34787

    • 5 Beds
    • 5 Baths
    • 4,798 Sq.Ft.
  • 1745 TAYLOR WOODS RD For Sale

    $2,200,000

    1745 TAYLOR WOODS RD, DELAND, FL 32724

    • 5 Beds
    • 5 Baths
    • 6,140 Sq.Ft.
  • 300 MUIRFIELD LOOP Sold

    $2,200,000

    300 MUIRFIELD LOOP, REUNION, FL 34747

    • 6 Beds
    • 11 Baths
    • 6,396 Sq.Ft.
  • 9652 ENGLISH LAUREL CT For Sale

    $2,024,900

    9652 ENGLISH LAUREL CT, ORLANDO, FL 32827

    • 6 Beds
    • 7 Baths
    • 4,954 Sq.Ft.
  • 15144 SHONAN GOLD DR Sold

    $1,900,000

    15144 SHONAN GOLD DR, WINTER GARDEN, FL 34787

    • 4 Beds
    • 5 Baths
    • 4,056 Sq.Ft.
  • 7725 FLEMINGWOOD CT Pending

    $1,800,000

    7725 FLEMINGWOOD CT, SANFORD, FL 32771

    • 5 Beds
    • 6 Baths
    • 4,898 Sq.Ft.
  • 8364 VIA VITTORIA WAY For Sale

    $1,695,000

    8364 VIA VITTORIA WAY, ORLANDO, FL 32819

    • 3 Beds
    • 4 Baths
    • 3,519 Sq.Ft.
  • 5215 HILLVIEW LN Sold

    $1,550,000

    5215 HILLVIEW LN, ORLANDO, FL 32819

    • 5 Beds
    • 6 Baths
    • 3,832 Sq.Ft.
  • 315 MUIRFIELD LOOP Sold

    $1,525,000

    315 MUIRFIELD LOOP, REUNION, FL 34747

    • 6 Beds
    • 6 Baths
    • 5,116 Sq.Ft.
  • 13640 HAULOVER BEACH LN For Sale

    $1,298,000

    13640 HAULOVER BEACH LN, ORLANDO, FL 32827

    • 5 Beds
    • 4 Baths
    • 4,342 Sq.Ft.
  • 14204 COLONIAL POINTE DR Sold

    $1,150,000

    14204 COLONIAL POINTE DR, WINTER GARDEN, FL 34787

    • 4 Beds
    • 4 Baths
    • 3,985 Sq.Ft.
  • 4719 KENSINGTON PARK BLVD Pending

    $1,099,000

    4719 KENSINGTON PARK BLVD, ORLANDO, FL 32819

    • 5 Beds
    • 4 Baths
    • 3,450 Sq.Ft.
  • 8625 SPINDLETOP DR Sold

    $1,075,000

    8625 SPINDLETOP DR, ORLANDO, FL 32819

    • 5 Beds
    • 5 Baths
    • 4,618 Sq.Ft.
  • 14969 WINTER STAY DR Sold

    $990,000

    14969 WINTER STAY DR, WINTER GARDEN, FL 34787

    • 4 Beds
    • 4 Baths
    • 3,443 Sq.Ft.
  • 2237 BAESEL VIEW DR For Sale

    $949,999

    2237 BAESEL VIEW DR, ORLANDO, FL 32835

    • 4 Beds
    • 4 Baths
    • 3,603 Sq.Ft.
  • 19147 QUINELLA ST Sold

    $925,000

    19147 QUINELLA ST, ORLANDO, FL 32833

    • 5 Beds
    • 6 Baths
    • 4,231 Sq.Ft.
  • 2506 SAINT IGNATIUS CT Sold

    $840,000

    2506 SAINT IGNATIUS CT, ORLANDO, FL 32835

    • 4 Beds
    • 3 Baths
    • 3,091 Sq.Ft.
  • 3637 CHANDLER ESTATES DR Sold

    $675,000

    3637 CHANDLER ESTATES DR, APOPKA, FL 32712

    • 4 Beds
    • 4 Baths
    • 3,371 Sq.Ft.
View All

Follow Us On Instagram